
Optimising Functionality and Aesthetics : A kitchen and Dinning Renovation
Project Overview
This project aims to transform the existing kitchen and dining area into a space that seamlessly blends functionality with aesthetics. By leveraging user-centered design principles and innovative solutions, we will create a kitchen and dining area that not only meets the practical needs of its users but also enhances their overall experience and enjoyment of the space.
Problem Statement
The current kitchen and dining area lack the necessary functionality and aesthetic appeal to meet the needs and preferences of the household. The existing layout is inefficient, leading to a disjointed workflow and limited usability. Storage solutions are inadequate, resulting in clutter and disorganization. Additionally, the outdated design fails to reflect the modern, stylish look desired by the users.
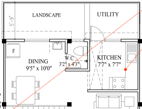
A significant issue is the tiny washroom space placed in the middle of the kitchen and dining area, creating a major obstacle and further disrupting the flow of the space. There is a need to create a space that not only enhances the cooking and dining experience but also aligns with contemporary design standards and integrates smart technology for added convenience. The goal is to transform the kitchen and dining area into a highly functional, visually appealing, and user-friendly space that caters to the daily activities and lifestyle of the household.


Goal
The goal is to transform the kitchen and dining area into a highly functional, visually appealing, and user-friendly space that caters to the daily activities and lifestyle of the household.
Research
User Interview
Conducted user interviews with the house owners, their children, and elderly parents. Each family member shared their pain points and experiences with the current kitchen and dining area, providing valuable insights on how the new kitchen can be improved


Key Findings
The current layout is very congested, with insufficient space to keep cooked foods.
The corner spaces in the storage remain unused, and the small kitchen sink causes the countertop and floor to get wet frequently.
There is no room to accommodate a dining table.
The washroom space is very tiny, making it difficult to close the door while inside.
Additionally, the washroom is located very close to the pooja room.
Observational studies
Spend time observing how users interact with their current kitchen. Note the flow of movement, frequently used areas, and any obstacles they encounter.
Key Findings
The electrical point for the mixer and grinder is located near the gas stove in a corner, making it difficult for the user, who is short in height, to operate the equipment freely.
There is no spice rack to keep frequently used spices within easy reach during cooking.
The refrigerator is placed far away from the kitchen, and large vessels, despite being frequently used, are stored in overhead cabinets due to insufficient storage space in the base units.
The kitchen countertop was frequently wet due to the proximity of the sink and cooking area. This led to unpleasant odors and water stains on the granite surface. The constant moisture also promoted the growth of bacteria and mold, which could contaminate food and utensils.
Persona






Focus group session
Organized a focus group session with several users to gather insights about their experiences and preferences. Since the focus was on a row house within a villa community, it was convenient to assemble a group of individuals who share a similar home design.
The participants included a diverse mix of homeowners: young couples, families with children, and retirees. Each group brought unique perspectives and needs to the discussion. Young couples were interested in modern, space-saving solutions, families focused on functionality and safety, while retirees emphasized ease of use and accessibility. This variety of participants provided a comprehensive understanding of different user requirements, helping us to tailor the kitchen redesign to meet a wide range of needs.
Card sorting
Conducted a card sorting exercise with the house owners and their family member to better understand their preference and priorities




Prototype
The prototype was meticulously crafted based on comprehensive user research and a deep understanding of user needs and pain points. By empathizing with the users, we were able to gather valuable insights that informed the design decisions.






Option 1
Relocated the washroom, which was a significant obstacle in the middle of the home, to the backyard. This new, larger washroom is strategically positioned to ensure free movement in the kitchen and dining area.
The kitchen was relocated to the backyard, featuring a straight kitchen design to ensure a seamless workflow.
This layout allows natural light to flow in from the left and back sides, enhancing the brightness and ventilation of the space
Option 2
Relocated the washroom, which was a significant obstacle in the middle of the home, to the backyard. This new, larger washroom is strategically positioned to ensure free movement in the kitchen and dining area.
The L-shaped kitchen layout was retained, but the sink was detached from the kitchen and relocated near the washroom.
This design preserved the backyard space, allowing natural light and airflow to circulate freely inside the home."
Option 3
Relocated the washroom, which was a significant obstacle in the middle of the home, to the backyard behind the kitchen. This new, larger washroom is strategically positioned to ensure free movement in the kitchen and dining area.
A parallel kitchen design was implemented, separating the cooking and cleaning areas to maintain cleanliness. This layout also provides ample space for the user to move around and complete the cooking process freely.
Additionally, this option preserved the backyard space, allowing natural light and airflow to circulate freely inside the home. It also enabled the addition of another window, further enhancing the natural light and ventilation
User testing
During the user testing phase, participants were presented with the above three different kitchen layout options. Each option was evaluated based on criteria such as workflow efficiency, natural light, and overall user experience.
Option 1 involved relocating the washroom and implementing a straight kitchen design in the backyard. Option 2 retained the L-shaped kitchen layout but moved the sink near the washroom. Option 3 featured a parallel kitchen design, allowing natural light to flow in from the left and back sides.
After thorough testing and feedback collection, the majority of users unanimously selected Option 3. They appreciated the seamless workflow and the enhanced natural light and ventilation provided by this design.
Conclusion
The kitchen and dining renovation successfully addressed the household's needs for functionality and aesthetics. By relocating the washroom to the backyard, we eliminated a major obstacle, enhancing the flow and usability of the space. The parallel kitchen design separated cooking and cleaning areas, ensuring cleanliness and ample movement space. Preserving the backyard allowed for natural light and ventilation, further improved by adding another window. This transformation resulted in a highly functional, visually appealing, and user-friendly kitchen and dining area that aligns with contemporary design standards and integrates smart technology for added convenience.
Before


